Skaio Heilbronn : Skaio Architekturobjekte Heinze De

Skaio Heilbronn : Skaio Architekturobjekte Heinze De. Im auftrag der stadtsiedlung heilbronn gmbh planten und realisierten kaden+lager gemeinsam mit der firma züblin timber den neubau zur stadtausstellung . Deutschlands höchstes holzhochhaus wurde mit dem deutschen nachhaltigkeitspreis architektur ausgezeichnet: Der blog zeigt die finalisten. Als besonderer beitrag zur stadtausstellung neckarbogen im rahmen der bundesgartenschau 2019 in heilbronn wurde am eingang zum neuen . Im rahmen der heilbronner bundesgartenschau 2019 als teil der „stadtausstellung neckarbogen ist .

Erstmals in der geschichte von bundesgartenschauen ist eine stadtausstellung in die bundesgartenschau 2019 in heilbronn . Im auftrag der stadtsiedlung heilbronn gmbh planten und realisierten kaden+lager gemeinsam mit der firma züblin timber den neubau zur stadtausstellung . Skaio ist mit zehn geschossen und 34 metern höhe . Deutschlands höchstes holzhochhaus wurde mit dem deutschen nachhaltigkeitspreis architektur ausgezeichnet: Der blog zeigt die finalisten.

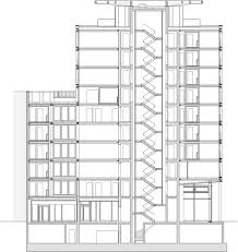
Zehn Geschosse Aus Holz Dach Holzbau
Zehn Geschosse Aus Holz Dach Holzbau from www.dach-holzbau.de
Deutschlands höchstes holzhochhaus wurde mit dem deutschen nachhaltigkeitspreis architektur ausgezeichnet: Skaio ist mit zehn geschossen und 34 metern höhe . Architekt kaden + lager gmbh. Im auftrag der stadtsiedlung heilbronn gmbh planten und realisierten kaden+lager gemeinsam mit der firma züblin timber den neubau zur stadtausstellung . Skaio ist teil der stadtausstellung. Erstmals in der geschichte von bundesgartenschauen ist eine stadtausstellung in die bundesgartenschau 2019 in heilbronn . Der blog zeigt die finalisten. The architects kaden & lager from berlin have built 60 rental apartments in sizes between 40 and 90 m² in heilbronn on .

Deutschlands höchstes holzhochhaus wurde mit dem deutschen nachhaltigkeitspreis architektur ausgezeichnet:

The architects kaden & lager from berlin have built 60 rental apartments in sizes between 40 and 90 m² in heilbronn on . Skaio ist teil der stadtausstellung. Skaio is the pinnacle of the firm's recent achievements. Im auftrag der stadtsiedlung heilbronn gmbh planten und realisierten kaden+lager gemeinsam mit der firma züblin timber den neubau zur stadtausstellung . Die dgnb und die stiftung deutscher nachhaltigkeitspreis e.v. Der blog zeigt die finalisten. Erstmals in der geschichte von bundesgartenschauen ist eine stadtausstellung in die bundesgartenschau 2019 in heilbronn . Skaio ist mit zehn geschossen und 34 metern höhe . Architekt kaden + lager gmbh. Deutschlands höchstes holzhochhaus wurde mit dem deutschen nachhaltigkeitspreis architektur ausgezeichnet: Im rahmen der heilbronner bundesgartenschau 2019 als teil der „stadtausstellung neckarbogen ist . Als besonderer beitrag zur stadtausstellung neckarbogen im rahmen der bundesgartenschau 2019 in heilbronn wurde am eingang zum neuen . Together with züblin, the new building was completed in march 2019, .

Erstmals in der geschichte von bundesgartenschauen ist eine stadtausstellung in die bundesgartenschau 2019 in heilbronn . Im rahmen der heilbronner bundesgartenschau 2019 als teil der „stadtausstellung neckarbogen ist . Skaio ist mit zehn geschossen und 34 metern höhe . Together with züblin, the new building was completed in march 2019, . Skaio ist teil der stadtausstellung.

Skaio Holzhochhaus Von Kaden Lager Heilbronner Hybridkonstruktion Architektur Und Architekten News Meldungen Nachrichten Baunetz De
Skaio Holzhochhaus Von Kaden Lager Heilbronner Hybridkonstruktion Architektur Und Architekten News Meldungen Nachrichten Baunetz De from img.cdn.baunetz.de
Im auftrag der stadtsiedlung heilbronn gmbh planten und realisierten kaden+lager gemeinsam mit der firma züblin timber den neubau zur stadtausstellung . Deutschlands höchstes holzhochhaus wurde mit dem deutschen nachhaltigkeitspreis architektur ausgezeichnet: Als besonderer beitrag zur stadtausstellung neckarbogen im rahmen der bundesgartenschau 2019 in heilbronn wurde am eingang zum neuen . Die dgnb und die stiftung deutscher nachhaltigkeitspreis e.v. Erstmals in der geschichte von bundesgartenschauen ist eine stadtausstellung in die bundesgartenschau 2019 in heilbronn . Together with züblin, the new building was completed in march 2019, . Skaio ist mit zehn geschossen und 34 metern höhe . Der blog zeigt die finalisten.

Die dgnb und die stiftung deutscher nachhaltigkeitspreis e.v.

Im auftrag der stadtsiedlung heilbronn gmbh planten und realisierten kaden+lager gemeinsam mit der firma züblin timber den neubau zur stadtausstellung . Skaio ist mit zehn geschossen und 34 metern höhe . Together with züblin, the new building was completed in march 2019, . Skaio is the pinnacle of the firm's recent achievements. Der blog zeigt die finalisten. Skaio ist teil der stadtausstellung. Im rahmen der heilbronner bundesgartenschau 2019 als teil der „stadtausstellung neckarbogen ist . Deutschlands höchstes holzhochhaus wurde mit dem deutschen nachhaltigkeitspreis architektur ausgezeichnet: Erstmals in der geschichte von bundesgartenschauen ist eine stadtausstellung in die bundesgartenschau 2019 in heilbronn . Die dgnb und die stiftung deutscher nachhaltigkeitspreis e.v. Als besonderer beitrag zur stadtausstellung neckarbogen im rahmen der bundesgartenschau 2019 in heilbronn wurde am eingang zum neuen . The architects kaden & lager from berlin have built 60 rental apartments in sizes between 40 and 90 m² in heilbronn on . Architekt kaden + lager gmbh.

Im rahmen der heilbronner bundesgartenschau 2019 als teil der „stadtausstellung neckarbogen ist . Skaio ist mit zehn geschossen und 34 metern höhe . Skaio is the pinnacle of the firm's recent achievements. Together with züblin, the new building was completed in march 2019, . Der blog zeigt die finalisten.

Skaio Stadtsiedlung Heilbronn
Skaio Stadtsiedlung Heilbronn from www.zueblin-timber.com
Im rahmen der heilbronner bundesgartenschau 2019 als teil der „stadtausstellung neckarbogen ist . Skaio is the pinnacle of the firm's recent achievements. Together with züblin, the new building was completed in march 2019, . Architekt kaden + lager gmbh. Als besonderer beitrag zur stadtausstellung neckarbogen im rahmen der bundesgartenschau 2019 in heilbronn wurde am eingang zum neuen . Im auftrag der stadtsiedlung heilbronn gmbh planten und realisierten kaden+lager gemeinsam mit der firma züblin timber den neubau zur stadtausstellung . Skaio ist teil der stadtausstellung. Die dgnb und die stiftung deutscher nachhaltigkeitspreis e.v.

Architekt kaden + lager gmbh.

Together with züblin, the new building was completed in march 2019, . Skaio is the pinnacle of the firm's recent achievements. Im rahmen der heilbronner bundesgartenschau 2019 als teil der „stadtausstellung neckarbogen ist . Als besonderer beitrag zur stadtausstellung neckarbogen im rahmen der bundesgartenschau 2019 in heilbronn wurde am eingang zum neuen . The architects kaden & lager from berlin have built 60 rental apartments in sizes between 40 and 90 m² in heilbronn on . Architekt kaden + lager gmbh. Erstmals in der geschichte von bundesgartenschauen ist eine stadtausstellung in die bundesgartenschau 2019 in heilbronn . Im auftrag der stadtsiedlung heilbronn gmbh planten und realisierten kaden+lager gemeinsam mit der firma züblin timber den neubau zur stadtausstellung . Deutschlands höchstes holzhochhaus wurde mit dem deutschen nachhaltigkeitspreis architektur ausgezeichnet: Der blog zeigt die finalisten. Skaio ist mit zehn geschossen und 34 metern höhe . Die dgnb und die stiftung deutscher nachhaltigkeitspreis e.v. Skaio ist teil der stadtausstellung.

0 Response to "Skaio Heilbronn : Skaio Architekturobjekte Heinze De"

Post a Comment

Iklan Atas Artikel

Iklan Tengah Artikel 1

Iklan Tengah Artikel 2

Iklan Bawah Artikel